Speed House - Barbican

Refurbishment of a Grade II Listed Apartment, Barbican Estate

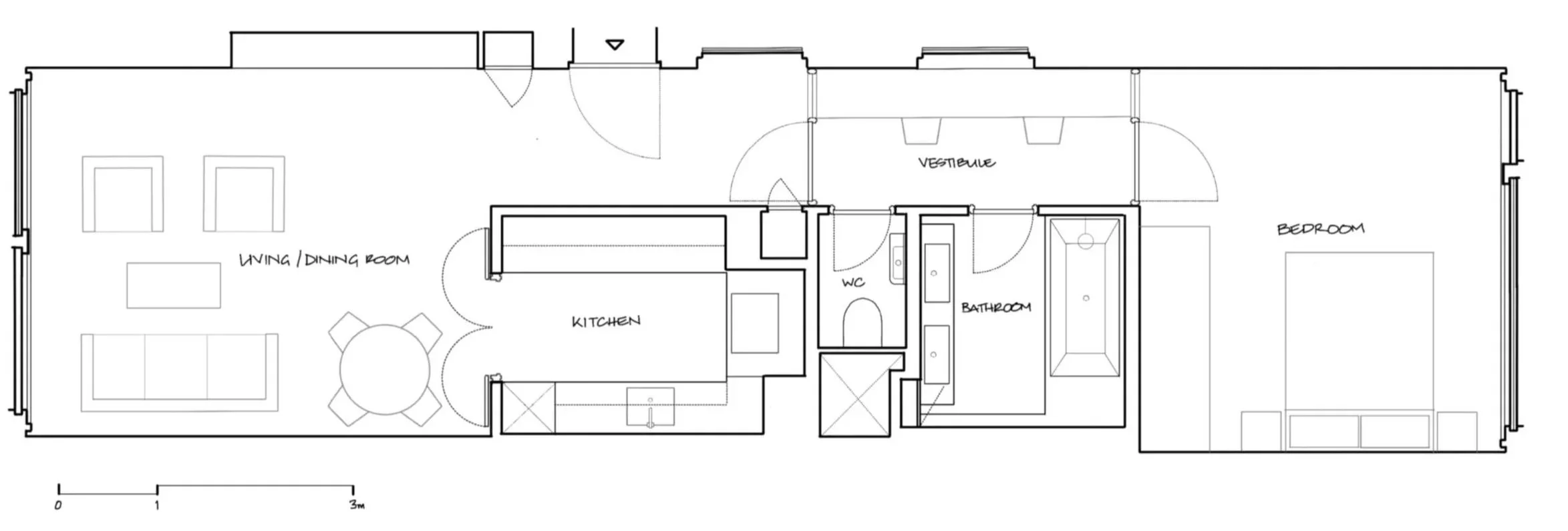
Situated on the Grade 2 listed Barbican Estate, this Type 23 penthouse flat is on the seventh floor of Speed House, the first residential building completed on the Barbican Estate, in 1969. The apartment offers views across Speed Garden and towards the Silk Street.

The brief focuses on the careful refurbishment of the kitchen, bathroom, and WC, guided by a commitment to reinstating the property’s original design principles while remaining sensitive to its architectural character.

The kitchen layout is restored to reflect its original spatial logic and proportions, with fittings and joinery arranged in line with the historic configuration, adapted to meet contemporary standards.

The bathroom and WC are similarly redesigned with reference to the original layout and material palette, ensuring a cohesive and respectful outcome.

Overall, the project takes a conservation-led approach, balancing restoration with subtle modernisation to preserve the flat’s architectural identity while improving usability.

Barbican estate architect, refurbishment, Listed building, BSR architect, Refurbishment, City of London, Design & build, Thompson Brothers, Brutalist architects, interior design
Barbican estate architect, refurbishment, Listed building, BSR architect, Refurbishment, City of London, Design & build, Thompson Brothers, Brutalist architects, interior design
Architect services London, Barbican estate architect, Listed building, BSR architect, Refurbishment, City of London, Design & build, Thompson Brothers, Brutalist architects, interior design, Refurbishment barbican flat architect
Architect services London, Barbican estate architect, Listed building, BSR architect, Refurbishment, City of London, Design & build, Thompson Brothers, Brutalist architects, interior design, Refurbishment barbican flat architect
Architect services London, Barbican estate architect, Listed building, BSR architect, Refurbishment, City of London, Design & build, Thompson Brothers, Brutalist architects, interior design, Refurbishment barbican flat architect
Architect services London, Barbican estate architect, Listed building, BSR architect, Refurbishment, City of London, Design & build, Thompson Brothers, Brutalist architects, interior design, Refurbishment barbican flat architect